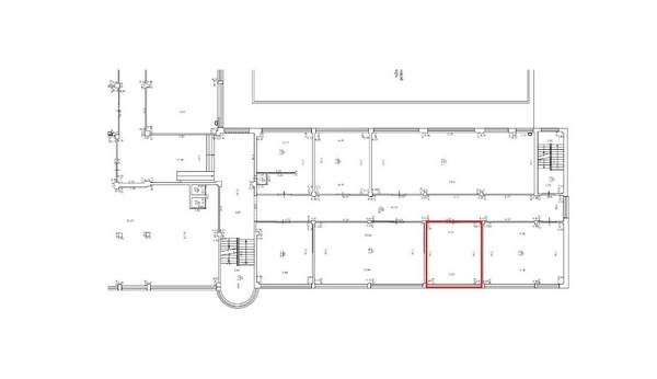
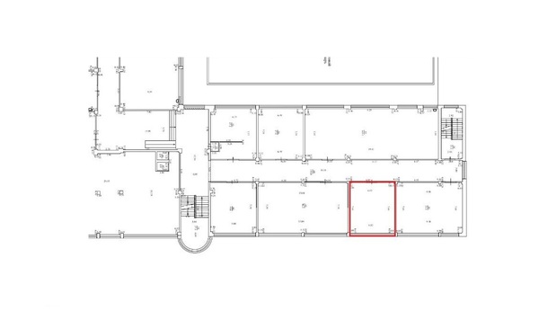
Сдам коммерческое помещение 48.9 м2, Ленина пр-кт, 49, Екатеринбург г
Стоимость аренды
68019
руб./месяц
Сдам помещение площадью 48.9 кв.м., расположенное на 3-ем этаже креативного кластера в легендарном Доме Печати.
Помещение правильной геометрической формы, высота потолка 4 метра. Дом печати давно зарекомендовал себя как модное, прогрессивное комьюнити с чёткой концепцией, резидентами которого являются фотостудии, танцевальные школы, рекламные и маркетинговые группы, ІТ-компании, СМИ, дизайнеры и архитекторы. Также в здании открыто большое количество ресторанов и кафе. Дополнительно оплачиваются коммунальные услуги и обслуживание помещения (100 руб. за кв.м). У Вас есть уникальная возможность занять свою нишу в бизнесе. На все вопросы отвечу по телефону! Без комиссии для арендаторов. #8893973# Общая стоимость: 68019 руб./месяц Этаж/этажность: 3/ Агентам: Не звонить |
2181738 05 Декабря 2025 просмотров 15 |
Добавить комментарий
Похожие объявления














