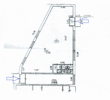
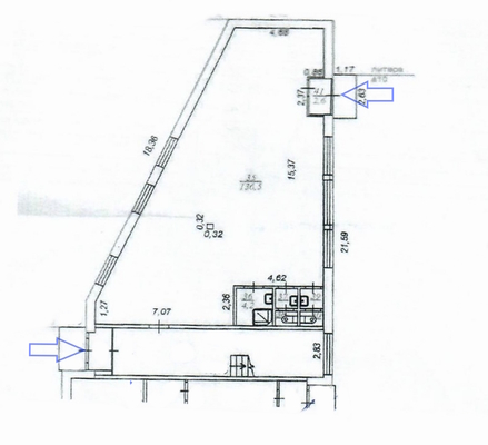
Торговое помещение 148 кв.м. с парковкой и рекламой на трафике
Стоимость аренды
229865
руб./месяц
Сдам универсальное торговое помещение на 1ом этаже отдельно стоящего офисного здания.
— Единый зал 148.3 кв. м с остеклением на две стороны позволяет создать любую планировку и наполнить пространство естественным светом, создавая приятную атмосферу для посетителей. — Гибкие условия - готовы предоставить арендные каникулы на старте и обсудить вариант ремонта под ваши нужды. — Современная вентиляция, пожарная сигнализация, несколько точек подключения к воде/канализации, два входа дают полную свободу для реализации вашего проекта. — Бесплатная парковка для резидентов на территории под шлагбаумом. — Наружная реклама над входной группой хорошо просматривается из плотного автомобильного трафика. Помещение подойдет для розничного магазина, шоу-рума, салона услуг, медицинских, офисных направлений и любого другого формата. Позвоните чтобы договориться о просмотре и обсудить условия! #8883786# Общая стоимость: 229865 руб./месяц Этаж/этажность: 1/3 Агентам: Не звонить |
2178019 11 Октября 2025 просмотров 25 |
Добавить комментарий
Похожие объявления














