Универсальное помещение
Стоимость аренды
180000
руб./месяц
Сдам помещение свободного назначения.
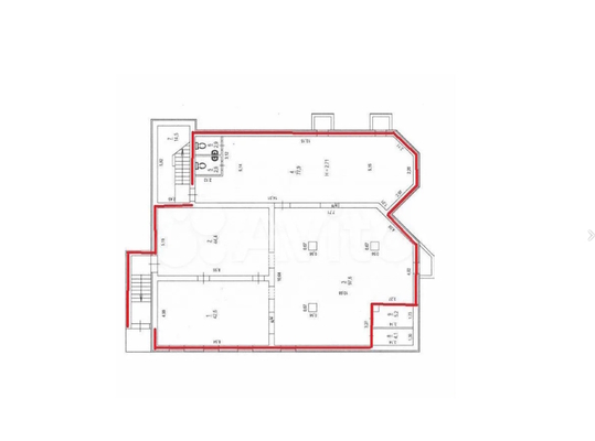
Расположен на цокольном этаже отдельно стоящего здания. Несколько входов-выходов, есть зона для погрузки разгрузки. Общая площадь 280 кв.м. разделена на два больших зала и несколько отдельных комнат. Установлена приточно-вытяжная вентиляция, светодиодное освещение. На фасаде возможно разместить наружную рекламу. На первом этаже находится продуктовый магазин. #8883361# Общая стоимость: 180000 руб./месяц Этаж/этажность: 0/2 Агентам: Не звонить |
2177953 09 Октября 2025 просмотров 19 |
Добавить комментарий
Похожие объявления












