Сдам ресторан 543.5 м2, Ленина пр-кт, 49, Екатеринбург г
Стоимость аренды
706550
руб./месяц
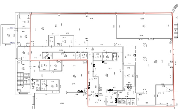
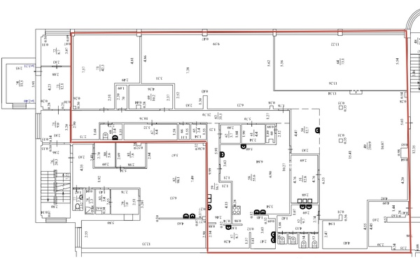
Сдам помещение площадью 543.5 кв.м, расположенное на 2-ом этаже креативного кластера в легендарном Доме Печати.
Помещение полностью спроектировано под общепит и функционально разделено на зону посадки гостей и зону технологического процесса. Планировка выверенная и удобная для ресторанного проекта любого формата. Кухня полностью подготовлена и технически готова к эксплуатации — требуется только завезти и установить оборудование. В помещении предусмотрены все необходимые инженерные системы: профессиональная вытяжка, жироуловители, холодильная камера хранения, складские помещения, отдельная комната для хранения угля, мангал для открытого огня, вытяжные зонты. Установлены сплит-системы кондиционирования. Электрическая мощность предоставляется по согласованию. Основной вход в помещение осуществляется с улицы Ленина. Для удобства работы общепита предусмотрена отдельная зона разгрузки со двора, без пересечения с гостевым потоком. Дом Печати давно зарекомендовал себя как модное и прогрессивное комьюнити с чёткой концепцией. Резидентами кластера являются фотостудии, танцевальные школы, рекламные и маркетинговые агентства, ІТ-компании, СМИ, дизайнеры и архитекторы. В здании также успешно работают рестораны и кафе, формируя стабильный поток посетителей. Коммунальные услуги и обслуживание помещения оплачиваются дополнительно. Также оплачивается обслуживание здания (100 рублей за квадратный метр). Уникальная возможность занять сильную нишу в готовой локации с именем и живой аудиторией. На все вопросы отвечу по телефону. Без комиссии для арендаторов. #8902302# Общая стоимость: 706550 руб./месяц Этаж/этажность: 2/ Агентам: Не звонить |
2184456 05 Февраля 2026 просмотров 1 |
Добавить комментарий
Похожие объявления






























